プレール・ドゥーク東京EASTⅤ 706号室
お部屋 間取り・写真
基本データ
| 住所 | 東京都台東区三ノ輪1丁目1-11 | ||
|---|---|---|---|
| 路線/バス会社 | 東京メトロ日比谷線 / | ||
| 駅名/停留所名 | 三ノ輪駅 / | ||
| 徒歩時間 | 三ノ輪駅:5分 / 停留所: | ||
| 賃料 | 145,000円 | 管理費 | 8,000円 |
| 敷金 | 無 | 礼金 | 賃料1ヵ月分 |
| 方角 | 北東 | 鍵交換費 | (税込) |
| スマートロック登録費 | 27,500円(税込) | 保険料 | 友の会費:3,190円 /月額(税込) |
| 駐車場空き | - | 駐車場賃料 | - |
| 消毒代 | 26,400円(税込) | 定額ルームクリーニング代 | 74,800円 |
| 入居日 | 2026/01/30 | 物件ID | 6057*36 |
| 備考 | 仲介手数料:不要 | ||
物件オススメポイント
- ①広々リビング14.7帖♪
- ②ペット相談可(小型犬または猫1匹、敷金2ヶ月)
- ③二面採光 角部屋
周辺情報のチェック
物件・お部屋情報
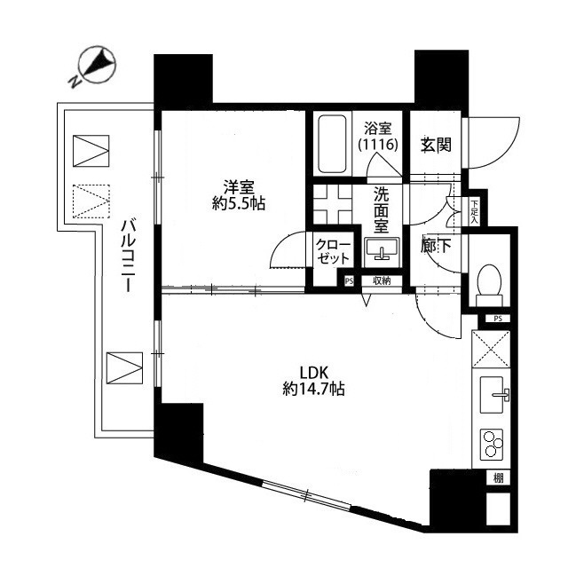
- 間取りタイプ
- 1LDK
- 階数/階層
- 7階/地上13階
- 号室
- 706号室
- 角部屋
- ○
- 専有面積
- 43.95㎡
- バルコニー専有面積
- 8.41㎡
- ガスタイプ
- 都市ガス
- 築年月
- 2010/03
- 物件種別
- マンション
- 総戸数
- 66戸
- 構造種別
- RC造
管理会社・契約について
- ペット相談可
- ○
- ペット飼育の場合の敷金
- 敷金2ヵ月
- 二人暮らし可
- -
- 楽器可
- -
- 契約期間
- 2年
- 更新料
- 181,250円
- 管理会社
- -
- 契約条件
- 普通賃貸借契約
- 解約予告
- 1ヶ月前
- 入居日
- 2026/01/30
取引態様:貸主
部屋の特徴・設備について
- マンション
- RC造
- 2010/03 築
- 駐車場あり
- カーシェア
- 都市ガス
- オートロック
- ペット可
- インターネット
- フローリング
特徴・設備を見る
- キッチン
- ガスコンロ3口
- システムキッチン
- ○
- トイレ
- 温水洗浄暖房便座
- バス・トイレ別
- ○
- 独立洗面台
- 洗面化粧台
- シャンプードレッサー
- -
- 給湯
- ○
- 追い焚き
- -
- 洗濯機置き場
- 室内洗濯機置き場
- インターネット
- 光ファイバー完備
- フローリング
- ○
- エアコン
- ○
- バルコニー
- ○
- メゾネット
- -
- バリアフリー
- -
- インターフォン
- TVインターフォン
- トランクルーム
- -
- 床下収納
- -
- ウォークインクローゼット
- ○
- 地デジ対応TV付
- -
- BS
- ○
- CATV
- -
- オートロック
- ○
- オール電化
- -
- エレベーター
- ○
- 防犯カメラ
- ○
- 駐輪場
- ○
- バイク置場
- ○
- ごみ集積場
- ○
- 宅配ボックス
- ○
- カーシェア
- -
プレール・ドゥーク東京EASTⅤについて
【概要】
シンプルでスタイリッシュな外観を持ち、スマートでクールな気品溢れる造りのプレール・ドゥーク東京EASTⅤは東京都台東区に立地するマンション。白を基調とした明るい室内はどんな家具やインテリアにも合わせやすく、都会での新生活にふさわしい華やかなアクセントを添えてくれるでしょう。
【周辺の雰囲気】
プレール・ドゥーク東京EASTⅤが立地する「三ノ輪」。かつては昔ながらの商店や古民家など、絵に描いたような東京の下町風景が広がっていました。特に物件から南東地方にある「いろは会商店街」では今でもそれを感じることができます。近年では再開発も積極的に行われています。近隣にはお買い物に便利な施設も増えており、また物件そばを通る明治通り沿いには飲食店や商業施設も点在しています。交通の便にも大変優れているエリアといえるでしょう。
【アクセス】
プレール・ドゥーク東京EASTⅤから最寄りの東京メトロ日比谷線三ノ輪駅へは徒歩わずか5分。他にも、路面電車の都電荒川線三ノ輪橋駅、東京メトロ日比谷線南千住駅も徒歩圏内です。目的に合わせて乗り分けることができるでしょう。
プレール・ドゥーク東京EASTⅤのその他お部屋
プレール・ドゥーク東京EASTⅤをご覧の皆様に、こちらの賃貸物件もオススメです。
プレール・ドゥーク押上Ⅳ
- 所在地:
- 東京都墨田区
- 路線名:
- 東京メトロ...
- 駅名:
- 押上
- 間取り:
- 1K
- 家賃:
- ¥99,000
プレール・ドゥーク東向島
- 所在地:
- 東京都墨田区
- 路線名:
- 東武伊勢崎線
- 駅名:
- 東向島
- 間取り:
- 1LDK
- 家賃:
- ¥146,000
アレッジオK
- 所在地:
- 東京都台東区
- 路線名:
- 東京メトロ...
- 駅名:
- 入谷
- 間取り:
- 1R
- 家賃:
- ¥76,000
プレール・ドゥーク本所吾妻橋Ⅴ
- 所在地:
- 東京都墨田区
- 路線名:
- 都営浅草線
- 駅名:
- 本所吾妻橋
- 間取り:
- 1LDK
- 家賃:
- ¥177,000
プレール・ドゥーク浅草Ⅱ
- 所在地:
- 東京都墨田区
- 路線名:
- 都営浅草線
- 駅名:
- 浅草
- 間取り:
- 1K
- 家賃:
- ¥101,000
プレール・ドゥーク本所吾妻橋Ⅲ
- 所在地:
- 東京都墨田区
- 路線名:
- 都営浅草線
- 駅名:
- 本所吾妻橋
- 間取り:
- 1K
- 家賃:
- ¥101,000









