アンプルール クラージュコリーヌシャンⅡ 113号室
お部屋 間取り・写真
基本データ
| 住所 | 大阪府豊中市宮山町4-3-40 | ||
|---|---|---|---|
| 路線/バス会社 | 阪急箕面線 / | ||
| 駅名/停留所名 | 桜井駅 / | ||
| 徒歩時間 | 桜井駅:14分 / 停留所: | ||
| 賃料 | 58,000円 | 管理費 | 3,000円 |
| 敷金 | 無 | 礼金 | 無 |
| 方角 | 西 | 鍵交換費 | 27,500円 (税込) |
| スマートロック登録費 | - | 保険料 | 友の会費:2,530円 /月額(税込) |
| 駐車場空き | 要確認 | 駐車場賃料 | 12,100円 |
| 消毒代 | 26,400円(税込) | 定額ルームクリーニング代 | - |
| 入居日 | 2026/05/29 | 物件ID | 9891*11 |
| 備考 | 仲介手数料:不要 | ||
物件オススメポイント
- ①インターネット無料!宅配ボックス設置で留守中の荷物受取も安心ですね♪
- ②敷金礼金0円!初期費用キャンペーン実施中!詳細はお問い合わせください♪
- ③大阪大学柴原門へ自転車で8分の距離!大阪大学の学生さんにもオススメ!
周辺情報のチェック
物件・お部屋情報
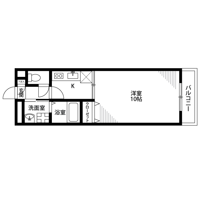
- 間取りタイプ
- 1K
- 階数/階層
- 1階/地上2階
- 号室
- 113号室
- 角部屋
- ×
- 専有面積
- 32.83㎡
- バルコニー専有面積
- 2㎡
- ガスタイプ
- 都市ガス
- 築年月
- 2010/02
- 物件種別
- アパート
- 総戸数
- 24戸
- 構造種別
- 軽量鉄骨造
管理会社・契約について
- ペット相談可
- -
- ペット飼育の場合の敷金
- 二人暮らし可
- -
- 楽器可
- -
- 契約期間
- 2年
- 更新料
- -
- 管理会社
- 株式会社木下の賃貸
- 契約条件
- 普通賃貸借契約
- 解約予告
- 1ヶ月前
- 入居日
- 2026/05/29
取引態様:貸主
部屋の特徴・設備について
- アパート
- 軽量鉄骨造
- 2010/02 築
- 駐車場あり
- カーシェア
- 都市ガス
- オートロック
- ペット可
- インターネット
- フローリング
特徴・設備を見る
- キッチン
- ガスコンロ2口
- システムキッチン
- ○
- トイレ
- 普通便座
- バス・トイレ別
- ○
- 独立洗面台
- 洗面化粧台
- シャンプードレッサー
- ○
- 給湯
- ○
- 追い焚き
- -
- 洗濯機置き場
- 室内洗濯機置き場
- インターネット
- 無料インターネット完備
- フローリング
- ○
- エアコン
- ○
- バルコニー
- ○
- メゾネット
- -
- バリアフリー
- -
- インターフォン
- TVインターフォン
- トランクルーム
- -
- 床下収納
- -
- ウォークインクローゼット
- -
- 地デジ対応TV付
- -
- BS
- -
- CATV
- -
- オートロック
- ○
- オール電化
- -
- エレベーター
- -
- 防犯カメラ
- ○
- 駐輪場
- ○
- バイク置場
- ○
- ごみ集積場
- ○
- 宅配ボックス
- ○
- カーシェア
- -
アンプルール クラージュコリーヌシャンⅡについて
【概要】
アンプルール クラージュコリーヌシャンⅡは大阪府豊中市宮山町にある賃貸アパートです。地上2階建ての軽量鉄骨造で、総戸数は24戸。シックで落ち着きのある外観は低層マンションと変わらぬ趣を漂わせています。間取りは洋室フローリング10帖の1Kで、バス・トイレ別、エアコン、シャワー付き洗面台、10段あるシューズボックスには数多くの靴を収納することができます。
【周辺の雰囲気】
アンプルール クラージュコリーヌシャンⅡのある宮山町4丁目は、緑の多い自然環境が残る閑静な住宅街です。近隣には赤坂上池公園、宮山公園、野畑南公園といった環境のよい公園が多く点在しているので、気分転換に散歩してみるのもよいでしょう。物件の東側にある千里川を渡り、すぐそばを通る府道43号線沿いまで行くと飲食店が集中しているので、外食の際には重宝します。車を使えばホームセンターや衣料品チェーン店、大型スーパーマーケットといった商業施設を利用することも可能です。
【アクセス】
アンプルール クラージュコリーヌシャンⅡは大阪モノレールの柴原駅から徒歩23分の場所にあります。阪急梅田駅へは蛍池駅から阪急宝塚本線に乗り換えて約24分で向かうことができます。また、国道171号線や中国自動車道も近くを通っているため、車によるアクセスも良好といえるでしょう。
アンプルール クラージュコリーヌシャンⅡをご覧の皆様に、こちらの賃貸物件もオススメです。
プルーデンス 箕面セントラル
- 所在地:
- 大阪府箕面市
- 路線名:
- 北大阪急行線
- 駅名:
- 箕面萱野
- 間取り:
- 1K
- 家賃:
- ¥49,000
ラ・アンブル
- 所在地:
- 大阪府豊中市
- 路線名:
- 大阪モノレ...
- 駅名:
- 柴原
- 間取り:
- 1K
- 家賃:
- ¥65,000
グローリーハイツ西緑丘
- 所在地:
- 大阪府豊中市
- 路線名:
- 大阪モノレ...
- 駅名:
- 少路
- 間取り:
- 3LDK
- 家賃:
- ¥78,000
アンプルール クレール
- 所在地:
- 大阪府豊中市
- 路線名:
- 大阪モノレ...
- 駅名:
- 少路
- 間取り:
- 1K
- 家賃:
- ¥58,000
リコルテ サントルモンターニュ
- 所在地:
- 大阪府豊中市
- 路線名:
- 大阪モノレ...
- 駅名:
- 少路
- 間取り:
- 1K
- 家賃:
- ¥63,000









