プレール・ドゥーク高輪 202号室
お部屋 間取り・写真
基本データ
| 住所 | 東京都港区高輪1丁目23-1 | ||
|---|---|---|---|
| 路線/バス会社 | 東京メトロ南北線 / | ||
| 駅名/停留所名 | 白金高輪駅 / | ||
| 徒歩時間 | 白金高輪駅:4分 / 停留所: | ||
| 賃料 | 96,000円 | 管理費 | 8,000円 |
| 敷金 | 無 | 礼金 | 賃料1ヵ月分 |
| 方角 | 北 | 鍵交換費 | (税込) |
| スマートロック登録費 | 27,500円(税込) | 保険料 | 友の会費:2,530円 /月額(税込) |
| 駐車場空き | - | 駐車場賃料 | - |
| 消毒代 | 26,400円(税込) | 定額ルームクリーニング代 | 63,800円 |
| 入居日 | 2026/02/01 | 物件ID | 4225*2 |
| 備考 | 仲介手数料:不要 | ||
物件オススメポイント
- ①白金高輪駅から徒歩4分!洋室約6.4帖
- ②インターネット月額基本使用料無料(BBM-NET)
- ③フローリング リフォーム予定
周辺情報のチェック
物件・お部屋情報
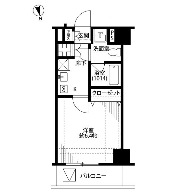
- 間取りタイプ
- 1K
- 階数/階層
- 2階/地上12階
- 号室
- 202号室
- 角部屋
- ×
- 専有面積
- 22.18㎡
- バルコニー専有面積
- 3.3㎡
- ガスタイプ
- 都市ガス
- 築年月
- 2006/09
- 物件種別
- マンション
- 総戸数
- 41戸
- 構造種別
- RC造
管理会社・契約について
- ペット相談可
- -
- ペット飼育の場合の敷金
- 二人暮らし可
- -
- 楽器可
- -
- 契約期間
- 2年
- 更新料
- 120,000円
- 管理会社
- -
- 契約条件
- 普通賃貸借契約
- 解約予告
- 1ヶ月前
- 入居日
- 2026/02/01
取引態様:代理
部屋の特徴・設備について
- マンション
- RC造
- 2006/09 築
- 駐車場あり
- カーシェア
- 都市ガス
- オートロック
- ペット可
- インターネット
- フローリング
特徴・設備を見る
- キッチン
- ガスコンロ2口
- システムキッチン
- ○
- トイレ
- 温水洗浄暖房便座
- バス・トイレ別
- ○
- 独立洗面台
- 独立洗面台
- シャンプードレッサー
- -
- 給湯
- ○
- 追い焚き
- -
- 洗濯機置き場
- 室内洗濯機置き場
- インターネット
- 無料インターネット完備
- フローリング
- ○
- エアコン
- ○
- バルコニー
- ○
- メゾネット
- -
- バリアフリー
- -
- インターフォン
- TVインターフォン
- トランクルーム
- -
- 床下収納
- -
- ウォークインクローゼット
- -
- 地デジ対応TV付
- -
- BS
- ○
- CATV
- ○
- オートロック
- ○
- オール電化
- -
- エレベーター
- ○
- 防犯カメラ
- ○
- 駐輪場
- ○
- バイク置場
- -
- ごみ集積場
- ○
- 宅配ボックス
- ○
- カーシェア
- -
プレール・ドゥーク高輪について
【概要】
プレール・ドゥーク高輪は、港区高輪にある賃貸マンションです。外観にはシックな色合いのタイルを使用。上品な港区にふさわしいデザインとなっています。オートロックや防犯カメラが設置されており、部屋にはTVモニター付インターフォンもあり、セキュリティ性能の高さが自慢の物件です。ほかにも留守でも郵便物のやりとりを行える宅配ボックスや、24時間使用できる敷地内ゴミ置き場などシングルユーザーにうれしい施設を備えています。
【周辺の雰囲気】
港区の南部に位置する高輪。かつて財界人の別荘が構えられていた高級住宅地であり、静かで落ち着いた町並みであることから、大企業の経営者や医師が好んで住む傾向があります。プレール・ドゥーク高輪は桜田通りに面した場所にあり、周辺には高級マンションや私立大学が集中しています。寺社仏閣など歴史的な施設も多く、静かで洗練された雰囲気が漂う町です。徒歩圏内にはスーパーマーケットも多く、日常の買い物にも便利です。
【アクセス】
プレール・ドゥーク高輪は、東京メトロ南北線や都営三田線が通る白金高輪駅から徒歩4分、都営浅草線や京急線が停車する泉岳寺駅も徒歩圏内です。日本を代表するビジネス街がある大手町駅へも電車でアクセス可能な好立地にあり、都心方面へのアクセスにもすぐれています。









