アムール Miwa 101号室
お部屋 間取り・写真
基本データ
住所 | 埼玉県さいたま市中央区大戸5丁目19-14 | ||
---|---|---|---|
路線/バス会社 | JR京浜東北・根岸線 / | ||
駅名/停留所名 | 北浦和駅 / | ||
徒歩時間 | 北浦和駅:13分 / 停留所: | ||
賃料 | 59,000円 | 管理費 | 3,000円 |
敷金 | 無 | 礼金 | 29,500円 |
方角 | 南 | 鍵交換費 | - |
スマートロック登録費 | 27,500円(税込) | 保険料 | 友の会費:2,530円 /月額(税込) |
駐車場空き | - | 駐車場賃料 | - |
消毒代 | 26,400円(税込) | 定額ルームクリーニング代 | - |
入居日 | 即入居可 | 物件ID | 11531*1 |
備考 | 仲介手数料:不要 |
物件オススメポイント
- ①☆敷金0礼金0.5ヶ月☆法人契約の場合礼金1ヶ月
- ②☆BBM-NET月額基本使用料無料☆
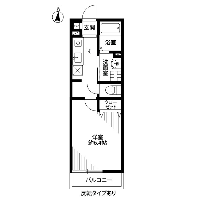
- ③☆洋室約6.4帖・バストイレ別・独立洗面化粧台・2口IHコンロ・追い焚き機能付バス☆
周辺情報のチェック
物件・お部屋情報
- 間取りタイプ
- 1K
- 階数/階層
- 1階/地上2階
- 号室
- 101号室
- 角部屋
- ○
- 専有面積
- 23.56㎡
- バルコニー専有面積
- ガスタイプ
- LPG
- 築年月
- 2014/06
- 物件種別
- アパート
- 総戸数
- 12戸
- 構造種別
- 木造
管理会社・契約について
- ペット相談可
- -
- ペット飼育の場合の敷金
- 二人暮らし可
- -
- 楽器可
- -
- 契約期間
- 2年
- 更新料
- 73,750円
- 管理会社
- -
- 契約条件
- 普通賃貸借契約
- 解約予告
- 1ヶ月前
- 入居日
- 即入居可
取引態様:貸主
部屋の特徴・設備について
- アパート
- 木造
- 2014/06 築
- 駐車場あり
- カーシェア
- プロパンガス
- オートロック
- ペット可
- インターネット
- フローリング
特徴・設備を見る
- キッチン
- IHクッキングヒーター2口
- システムキッチン
- ○
- トイレ
- 温水洗浄暖房便座
- バス・トイレ別
- ○
- 独立洗面台
- 洗面化粧台
- シャンプードレッサー
- -
- 給湯
- ○
- 追い焚き
- ○
- 洗濯機置き場
- 室内洗濯機置き場
- インターネット
- 無料インターネット完備
- フローリング
- ○
- エアコン
- ○
- バルコニー
- ○
- メゾネット
- -
- バリアフリー
- -
- インターフォン
- TVインターフォン
- トランクルーム
- -
- 床下収納
- -
- ウォークインクローゼット
- -
- 地デジ対応TV付
- -
- BS
- -
- CATV
- ○
- オートロック
- -
- オール電化
- -
- エレベーター
- -
- 防犯カメラ
- -
- 駐輪場
- ○
- バイク置場
- -
- ごみ集積場
- ○
- 宅配ボックス
- -
- カーシェア
- -