和田ハイツ 201号室
お部屋 間取り・写真
基本データ
| 住所 | 東京都練馬区石神井町2丁目30-10 | ||
|---|---|---|---|
| 路線/バス会社 | 西武池袋線 / | ||
| 駅名/停留所名 | 石神井公園駅 / | ||
| 徒歩時間 | 石神井公園駅:9分 / 停留所: | ||
| 賃料 | 63,000円 | 管理費 | 4,000円 |
| 敷金 | 無 | 礼金 | 賃料1ヵ月分 |
| 方角 | 西 | 鍵交換費 | - |
| スマートロック登録費 | 27,500円(税込) | 保険料 | 友の会費:2,530円 /月額(税込) |
| 駐車場空き | - | 駐車場賃料 | - |
| 消毒代 | 26,400円(税込) | 定額ルームクリーニング代 | 63,800円 |
| 入居日 | 2026/03/20 | 物件ID | 11129*3 |
| 備考 | 仲介手数料:不要 | ||
物件オススメポイント
- ①BBM-NET月額基本使用料無料
- ②バストイレ別!角部屋!洋室:フローリング、ガスコンロ
- ③西武線急行で池袋まで1本!副都心線へも直結!
周辺情報のチェック
物件・お部屋情報
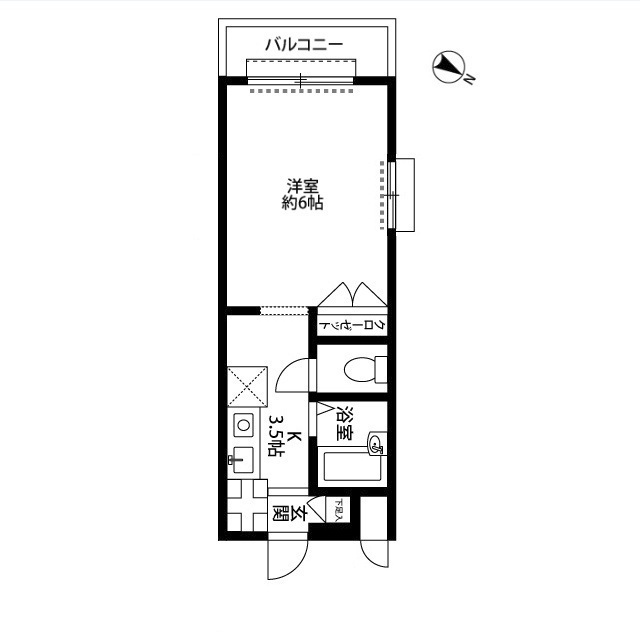
- 間取りタイプ
- 1K
- 階数/階層
- 2階/地上3階
- 号室
- 201号室
- 角部屋
- ○
- 専有面積
- 20.09㎡
- バルコニー専有面積
- ガスタイプ
- 都市ガス
- 築年月
- 1998/03
- 物件種別
- マンション
- 総戸数
- 12戸
- 構造種別
- 鉄骨造
管理会社・契約について
- ペット相談可
- -
- ペット飼育の場合の敷金
- 二人暮らし可
- -
- 楽器可
- -
- 契約期間
- 2年
- 更新料
- 78,750円
- 管理会社
- -
- 契約条件
- 普通賃貸借契約
- 解約予告
- 1ヶ月前
- 入居日
- 2026/03/20
取引態様:代理
部屋の特徴・設備について
- マンション
- 鉄骨造
- 1998/03 築
- 駐車場あり
- カーシェア
- 都市ガス
- オートロック
- ペット可
- インターネット
- フローリング
特徴・設備を見る
- キッチン
- ガスコンロ1口
- システムキッチン
- -
- トイレ
- 普通便座
- バス・トイレ別
- ○
- 独立洗面台
- -
- シャンプードレッサー
- -
- 給湯
- ○
- 追い焚き
- -
- 洗濯機置き場
- 室内洗濯機置き場
- インターネット
- 無料インターネット完備
- フローリング
- ○
- エアコン
- ○
- バルコニー
- ○
- メゾネット
- -
- バリアフリー
- -
- インターフォン
- ○
- トランクルーム
- -
- 床下収納
- -
- ウォークインクローゼット
- -
- 地デジ対応TV付
- -
- BS
- -
- CATV
- ○
- オートロック
- -
- オール電化
- -
- エレベーター
- -
- 防犯カメラ
- -
- 駐輪場
- ○
- バイク置場
- -
- ごみ集積場
- -
- 宅配ボックス
- -
- カーシェア
- -









